【好铺推荐】创意时代中心商铺▁流量金铺▁地铁口铺▁核心商圈▁实时动态-3月更新
扫描到手机,新闻随时看
扫一扫,用手机看文章
更加方便分享给朋友
西安「
创意时代中心商铺
」商铺销售中心
商铺销售电话:029-88866690(营销中心)
商铺销售地址:029-88866690(致电发送详情地址)
在售户型图丨项目详情介绍丨剩余房源丨项目周边配套丨详细在线解答
商铺销售中心 欢迎来电咨询!预约尊享优惠折扣 匠心钜制恭迎品鉴!
如需了解最新房源信息_在售房源价格_请拨打上方商铺销售中心电话!

创意时代中心商铺项目笔记
46-119㎡ 高新一期核心位 成熟商圈消费强
准现铺 | 全业态 | 可餐饮 | 邻地铁 | 5.8米层高
项目情况:
稀缺优质资产 倾情实力巨献
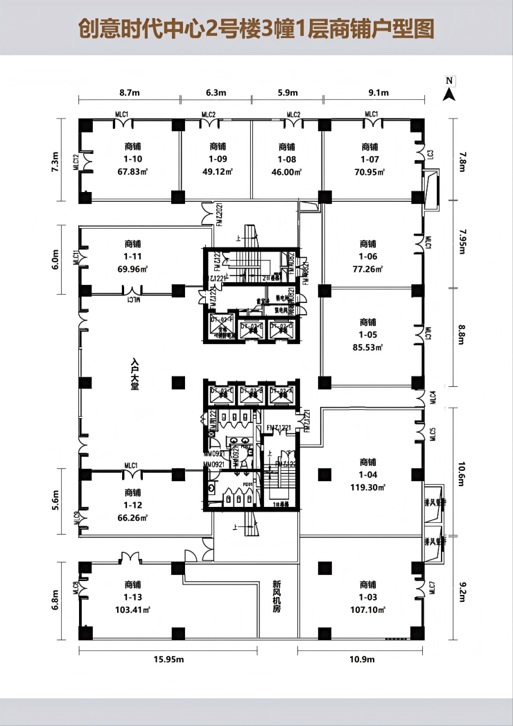
【商铺面积】46-119㎡
【商铺套数】:11套
【层 高】:5.8米,买一层得两层
【消费人群】:约20万流动消费群体
【餐饮】: 自接管道 可餐饮
【物业费】:22.5元/㎡·月
【交房时间】:2026年6月
【租金情况】:260~450元/平
【水电】:商水商电
【付款方式】:一次性
【公摊】:6%
产品信息:
纯一层
☑价格区间:3.3-5.3万元/㎡
☑主力面积:50-70㎡
☑主力总价:200~350万

项目位于西安软件园北侧,聚集大量公司,包括华为技术有限公司、中兴通讯、西安海思科技等,汇集4家500强客户及10余家中国软件百强企业,园区内共计约万名工作人员,可形成稳定的消费力。
目前园区内商业稀缺,就餐主要集中在园区内的美食城,可容纳约500人同时就餐,未能满足园区内人员的就餐需求,创意时代中心项目与消费人群“0”距离,具备天然优势,后期可吸引众多的消费人群。

区域介绍
本项目是高新中央科技核心区CID与高新核心区CBD的交汇黄金地带, 也是连接高新一期和二期的核心区域,周边高端写字楼、大型社区及商业配套已发展成为成熟商圈。
写字楼:万象汇、融城云谷、人才大厦、清华科技园、启迪科技园、中晶科技广场。
大型社区:荣民捌号、高新芳华、龙记观澜山、美墅、龙城铭园。
商业配套:启迪新商业、T11、九形道商业中心、方圆荟、中大国际商业中心。

项目卖点:
①高新一期核心位置,紧邻科技二路
②可餐饮,全业态,经营广泛
③实景准现铺,交房无风险
④5.8米层高,买一层得两层
⑤软件园环伺,超20万流动消费群体
⑥区域稀缺优质商业资产
⑦小面积,总价低,投资风险小
⑧方正户型,无梁无柱,空间灵活性强
稀缺鎏金旺铺:仅11席,错过再无
投资无忧:准现铺租售同步

【创意时代中心商铺】商铺销售电话TEL:029-88866690【商铺销售中心】
了解最新优惠折扣价格——请拨打服务热线
声明:本文由入驻焦点开放平台的作者撰写,除焦点官方账号外,观点仅代表作者本人,不代表焦点立场。
