和利时产业园区美百年科技中心▁建面▁租金▁实时动态▁优惠信息
搜狐焦点商洛站 2026-04-07 15:15:00
用手机看
扫描到手机,新闻随时看
扫一扫,用手机看文章
更加方便分享给朋友
西安「和利时产业园区美百年科技中心」租售中心:029-88866618(营销中心)租售中心地址:029-88866618(致电发送详情地址)
西安「和利时产业园区美百年科技中心」
租售中心:029-88866618(营销中心)
租售中心地址:029-88866618(致电发送详情地址)

和利时产业园区美百年科技中心
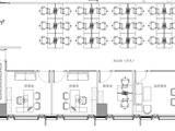
【面积】589平米
【租金】52元/平米/月(含税)
【物业费】10元/平米/月(含税)
【朝向】东南
【格局】4办公室+46工位
【交付标准】精装带家具
【签约年限】2年起签
【付款方式】押二付六或年付
【车位】300元/月(含管理费)
【电费】0.82元/度
【空调】中央空调,自控按流量计费
【电梯】5部日立高速电梯
【共享配套】提供茶室,会议室,休闲区,健身区以及路演厅等共享区域。
【地址】西安市高新区天谷五路999号
【房源实拍图】


【配套实拍图】



【平面布局图】

【和利时产业园区美百年科技中心】租售中心TEL:029-88866618【营销中心】
了解最新优惠折扣价格——请拨打服务热线
声明:本文由入驻焦点开放平台的作者撰写,除焦点官方账号外,观点仅代表作者本人,不代表焦点立场。
