公示!陕建·雁南朗境商铺-建面-楼盘详情-开发商-内部配套-4月更新
搜狐焦点商洛站 2026-04-15 16:27:58
用手机看
扫描到手机,新闻随时看
扫一扫,用手机看文章
更加方便分享给朋友
西安「陕建·雁南朗境商铺」商铺销售中心商铺销售电话:029-88866690(营销中心)商铺销售地址:029-88866690(致电发送详情
西安「陕建·雁南朗境商铺」商铺销售中心
商铺销售电话:029-88866690(营销中心)
商铺销售地址:029-88866690(致电发送详情地址)
在售户型图丨项目详情介绍丨剩余房源丨项目周边配套丨详细在线解答
雁塔区、全业态、大社区、双边街
项目简介
开发商:陕西实泰置业有限公司
总占地:264.2亩
总户数:3572户
产品属性:现铺
面 积:50-127m²
公 摊:3-4%
开间:3.7-8.8m
进深:4.9-12.9m
层 高:4.3-6m
项目地址:西安市雁塔区西部大道与茅坡路交汇处十字西南角(雁塔区)

教育:陕西师范大学雁塔第一实验小学、西安市雁塔区第四中学(陕师大附中)
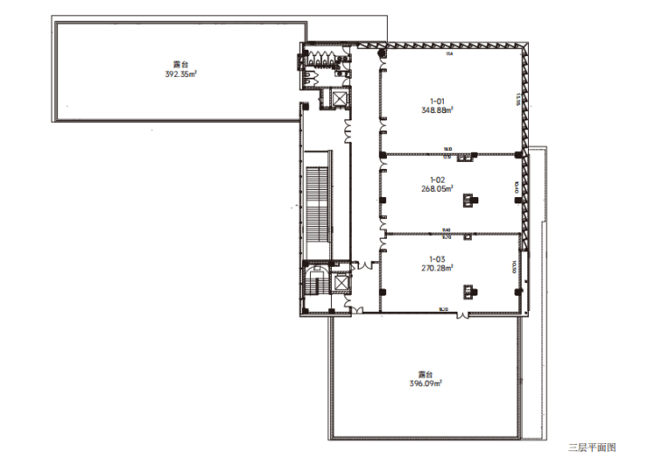
S1三层

S2一层

【陕建·雁南朗境商铺】商铺销售电话TEL:029-88866690【商铺销售中心】
了解最新优惠折扣价格——请拨打服务热线
声明:本文由入驻焦点开放平台的作者撰写,除焦点官方账号外,观点仅代表作者本人,不代表焦点立场。
