【年度红盘】莱安中心写字楼→高性价比→产品介绍→独家房源→动态
扫描到手机,新闻随时看
扫一扫,用手机看文章
更加方便分享给朋友
西安「莱安中心写字楼」
租售中心:029-88866618(营销中心)
租售中心地址:029-88866618(致电发送详情地址)
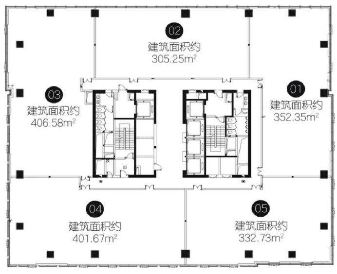
莱安中心T5-1203号 403.87㎡
【项目名称】:莱安中心&万象天地
【项目地址】:西安市曲江CCBD核心区位
【项目亮点】
1. 曲江新区门户位置,长安路中轴线,曲江,城南性价比最高的写字楼
2. 从项目出发2分钟至三环,20分钟至钟楼,40分钟至机场
3. 地铁2号线,8号线(会展中心站)上盖物业,50余条公交线路
4. 12万方商业配套,美食城,购物中心,精装公寓,健身中心,高端公寓一应俱全
5. B2、B3停车场,停车位超2000+,保证客户停车无忧
6. 定制/精装灵活交付,企业省心省时省成本
【写字楼T5概况】
单层体量:1800㎡
楼层:共18层
层高:4.2米
停车:3元/小时
电费:约0.81元/度(浮动电价)
物业费:21元/㎡/月(含税6%)
交付标准:遗留装修/定制装修
签约年限:2年起(2年内租金不递增)
付款方式:押2付6
T5大堂-五星装标 300㎡建面,近12米挑高

电梯厅 8部国际一线品牌电梯,1.6吨载客量

户型平面图 户内中央无柱设计,高实用面积,双层low-e中空玻璃

【户型概括】
面积:403.87㎡
装修:遗留装修
格局:6+1
层高:4.2米
租金:110元/㎡/月
物业费:21元/㎡/月(包含物业服务费,空调费,市政暖气费,垃圾费,电梯费,公共区域水电费等)
空调:中央空调,周一至周六,8:30-18:30开放,市政热源。


【莱安中心写字楼】租售中心TEL:029-88866618【营销中心】
了解最新优惠折扣价格——请拨打服务热线
声明:本文由入驻焦点开放平台的作者撰写,除焦点官方账号外,观点仅代表作者本人,不代表焦点立场。
