(租售中心)陕建·雁南朗境商铺-昭示性强-楼盘详情-产品介绍客流稳定
扫描到手机,新闻随时看
扫一扫,用手机看文章
更加方便分享给朋友
西安「陕建·雁南朗境商铺」商铺销售中心
商铺销售电话:029-88866690(营销中心)
商铺销售地址:029-88866690(致电发送详情地址)
如需了解最新房源信息_在售房源价格_请拨打上方商铺销售中心电话!
雁塔区、全业态、大社区、双边街
项目简介
开发商:陕西实泰置业有限公司
总占地:264.2亩
总户数:3572户
产品属性:现铺
面 积:50-127m²
公 摊:3-4%
开间:3.7-8.8m
进深:4.9-12.9m
层 高:4.3-6m
项目地址:西安市雁塔区西部大道与茅坡路交汇处十字西南角(雁塔区)

商业:宜家荟聚(已开业)、山姆超市(已签约)樱山下CCWord(在建)、万科广场、阳光天地购物广场、红星美凯龙、立丰城、益田假日购物中心、万达one等百万方成熟商业配套

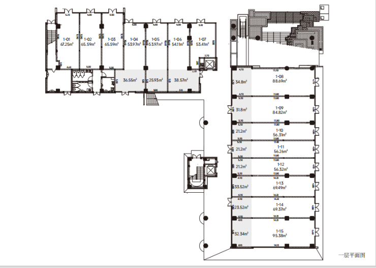
S1一层

S3一层

【陕建·雁南朗境商铺】商铺销售电话TEL:029-88866690【商铺销售中心】
了解最新优惠折扣价格——请拨打服务热线
声明:本文由入驻焦点开放平台的作者撰写,除焦点官方账号外,观点仅代表作者本人,不代表焦点立场。
